Overall Floorplan
Buildings 2 & 3
.jpg)
Front Entry Flex
Front Entry Flex

Floor Plans
Tenant is responsible for Electricity and Water.
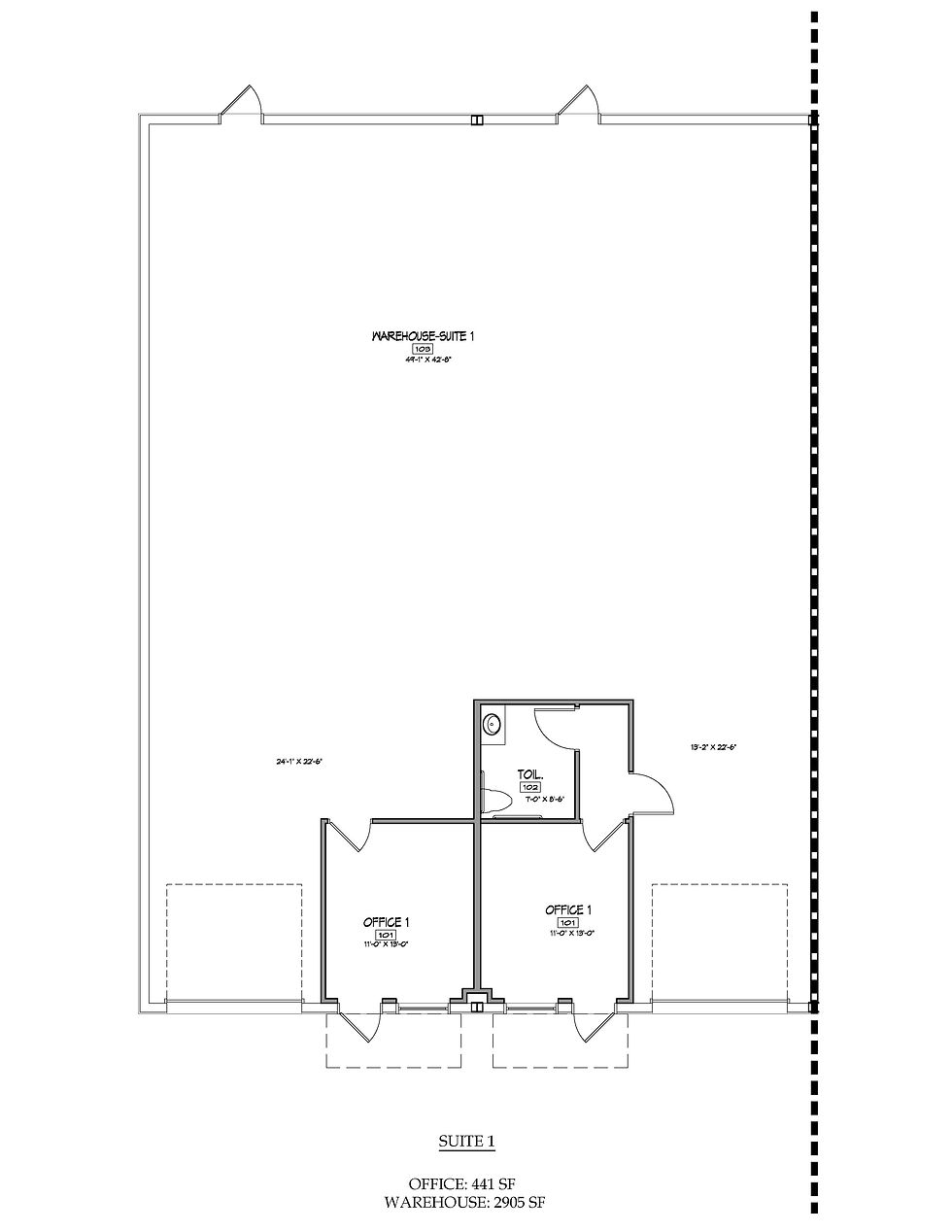
Base Suite
Total Area: 1665 Square Feet 25 x 66.6’
Office/Reception Area: 11 x 13 space suitable for managing client interactions or administrative tasks.
Bathroom: Convenient for employees and visitors.
Insulated Warehouse: Provides a temperature-regulated environment, ideal for storing sensitive materials or operating equipment.
14 foot tall insulated roll up doors - Allows easy access for larger vehicles and equipment , enhancing operational efficiency.

Upgrade Suite
Total Area: 1665 Square Feet 25' x 66.6’ Base Suite with a 2nd Office
First Office/Reception Area: 11 x 13 space suitable for managing client interactions or administrative tasks.
Second Office: 11 x 16 office for additional workspace or private meetings.
Bathroom: Convenient for employees and visitors.
Insulated Warehouse: Provides a temperature-regulated environment, ideal for storing sensitive materials or operating equipment.
14 foot tall insulated roll up doors - Allows easy access for larger vehicles and equipment , enhancing operational efficiency.

Upgrade Suite with Double Garage
Total Area: 3330 Square Feet 50 x 66.6’
Office/Reception Area: 11 x 13 space suitable for managing client interactions or administrative tasks.
Second Office: 11 x 16 office for additional workspace or private meetings.
Bathroom: Convenient for employees and visitors.
Insulated Warehouse: Provides a temperature-regulated environment, ideal for storing sensitive materials or operating equipment.
14 foot tall insulated roll up doors - Allows easy access for larger vehicles and equipment , enhancing operational efficiency.

Upgrade Suite with Double Space
Total Area: 3330 Square Feet 50 x 66.6’
Office/Reception Area: 11 x 13 space suitable for managing client interactions or administrative tasks.
Second Office: 11 x 16 office for additional workspace or private meetings.
Bathroom: Convenient for employees and visitors.
Insulated Warehouse: Provides a temperature-regulated environment, ideal for storing sensitive materials or operating equipment.
14 foot tall insulated roll up doors - Allows easy access for larger vehicles and equipment , enhancing operational efficiency.
.jpg)
Upgrade Suite with Double Space
Total Area: 3330 Square Feet 50 x 66.6’
Office/Reception Area: 11 x 13 space suitable for managing client interactions or administrative tasks.
Second Office: 11 x 16 office for additional workspace or private meetings.
Bathroom: Convenient for employees and visitors.
Insulated Warehouse: Provides a temperature-regulated environment, ideal for storing sensitive materials or operating equipment.
14 foot tall insulated roll up doors - Allows easy access for larger vehicles and equipment , enhancing operational efficiency.
.jpg)
Upgrade Suite with Double Space
Total Area: 3330 Square Feet 50 x 66.6’
Office/Reception Area: 11 x 13 space suitable for managing client interactions or administrative tasks.
Second Office: 11 x 16 office for additional workspace or private meetings.
Bathroom: Convenient for employees and visitors.
Insulated Warehouse: Provides a temperature-regulated environment, ideal for storing sensitive materials or operating equipment.
14 foot tall insulated roll up doors - Allows easy access for larger vehicles and equipment , enhancing operational efficiency.
.jpg)

Floor Plans
Full-Service Gross Lease Rates. Tenant is responsible for Electricity and Water.
Floor One Suite 1
BASE SUITE
From $1.45 SF/Month
Total Area: 1665 Square Feet 25 x 66.6’
Office/Reception Area: 11 x 13 space suitable for managing client interactions or administrative tasks.
Bathroom: Convenient for employees and visitors.
Insulated Warehouse: Provides a temperature-regulated environment, ideal for storing sensitive materials or operating equipment.
14 foot tall insulated roll up doors - Allows easy access for larger vehicles and equipment , enhancing operational efficiency.

Floor One Suite 2
UPGRADE
From $1.55 SF/Month
Total Area: 1665 Square Feet 25 x 66.6’ Base Suite with a 2nd Office
First Office/Reception Area: 11 x 13 space suitable for managing client interactions or administrative tasks.
Second Office: 11 x 16 office for additional workspace or private meetings.
Bathroom:Convenient for employees and visitors.
Insulated Warehouse: Provides a temperature-regulated environment, ideal for storing sensitive materials or operating equipment.
14 foot tall insulated roll up doors - Allows easy access for larger vehicles and equipment , enhancing operational efficiency.

Floor One Suite 3
UPGRADE SUITE WITH DOUBLE GARAGE
From $1.55 SF/Month
Total Area: 3330 Square Feet 25 x 66.6’
Office/Reception Area: 11 x 13 space suitable for managing client interactions or administrative tasks.
Second Office: 11 x 16 office for additional workspace or private meetings.
Bathroom: Convenient for employees and visitors.
Insulated Warehouse: Provides a temperature-regulated environment, ideal for storing sensitive materials or operating equipment.
14 foot tall insulated roll up doors - Allows easy access for larger vehicles and equipment , enhancing operational efficiency.

Floor Plans
Full-Service Gross Lease Rates. Tenant is responsible for Electricity and Water.
Base Suite
From $1.45 SF/Month
Total Area: 1665 Square Feet 25 x 66.6’
Office/Reception Area: 11 x 13 space suitable for managing client interactions or administrative tasks.
Bathroom: Convenient for employees and visitors.
Insulated Warehouse: Provides a temperature-regulated environment, ideal for storing sensitive materials or operating equipment.
14 foot tall insulated roll up doors - Allows easy access for larger vehicles and equipment , enhancing operational efficiency.

Upgrade Suite
From $1.55 SF/Month
Total Area: 1665 Square Feet 25 x 66.6’ Base Suite with a 2nd Office
First Office/Reception Area: 11 x 13 space suitable for managing client interactions or administrative tasks.
Second Office: 11 x 16 office for additional workspace or private meetings.
Bathroom: Convenient for employees and visitors.
Insulated Warehouse: Provides a temperature-regulated environment, ideal for storing sensitive materials or operating equipment.
14 foot tall insulated roll up doors - Allows easy access for larger vehicles and equipment , enhancing operational efficiency.

Upgrade Suite with Double Garage
From $1.55 SF/Month
Total Area: 3330 Square Feet 25 x 66.6’
Office/Reception Area: 11 x 13 space suitable for managing client interactions or administrative tasks.
Second Office: 11 x 16 office for additional workspace or private meetings.
Bathroom: Convenient for employees and visitors.
Insulated Warehouse: Provides a temperature-regulated environment, ideal for storing sensitive materials or operating equipment.
14 foot tall insulated roll up doors - Allows easy access for larger vehicles and equipment , enhancing operational efficiency.
